Knihovna
a společenské centrum

Úvaly


Jan Šorm
Pavel Zamazal
Michaela Kloudová


soutěž
2016

pohled z náměstí

Vnímáme drobnější měřítko a charakter zástavby náměstí, domy s průjezdy, objekty v druhé řadě a dvorky mezi. Poloha parcely na náměstí vedle radnice je lukrativní. Jako silný prvek také vnímáme propojení náměstí s břehem potoka přes dětské hřiště. Jeho provedení přes objekt radnice nám však nepřipadá příliš šťastné. Diagonální rampa násilně dělící dvorek na dvě trojúhelníkové části ztěžuje jeho využití. Chceme to napravit. Neřešíme pouze samotný dům, vytváříme městský soubor dotvářející urbanistickou strukturu Úval.
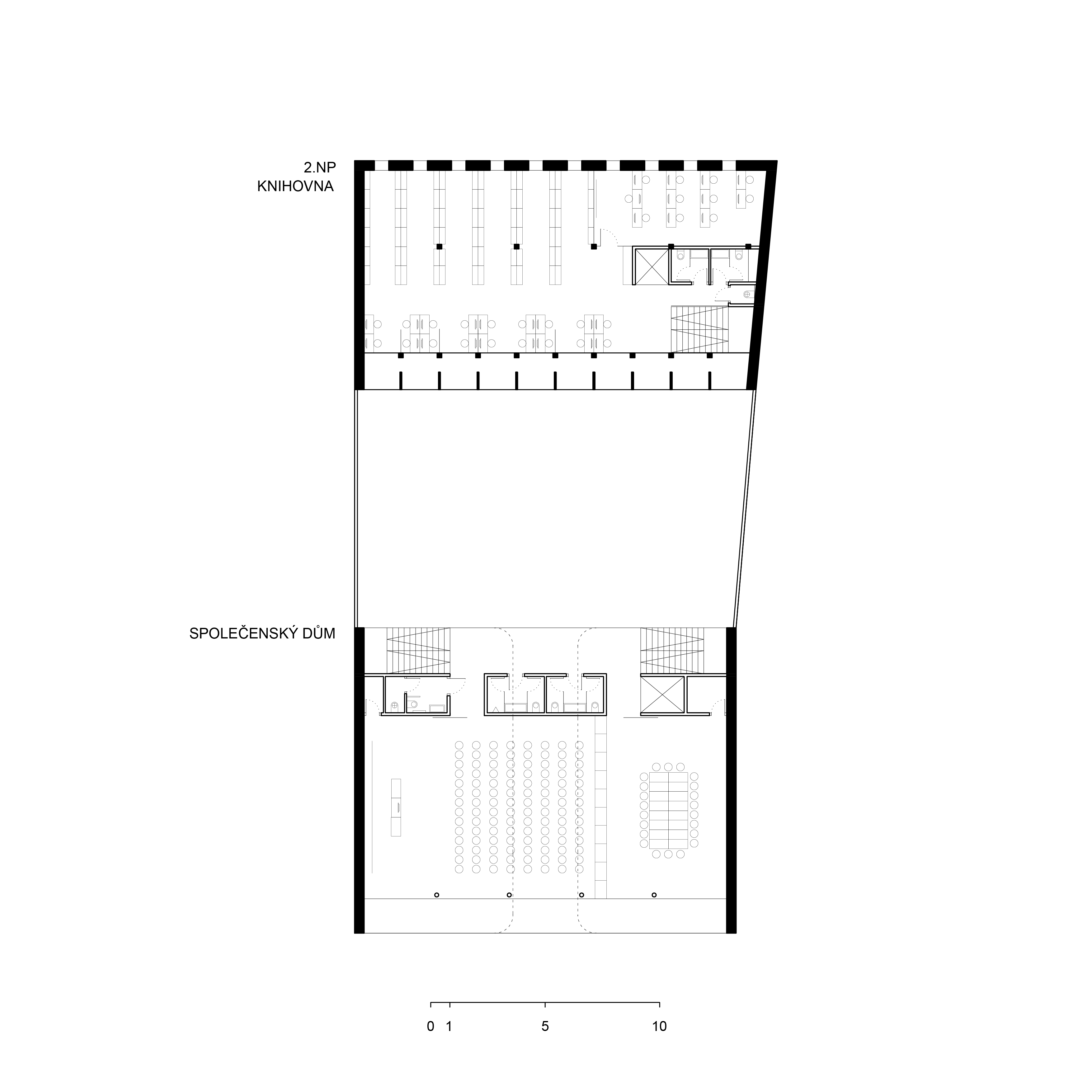
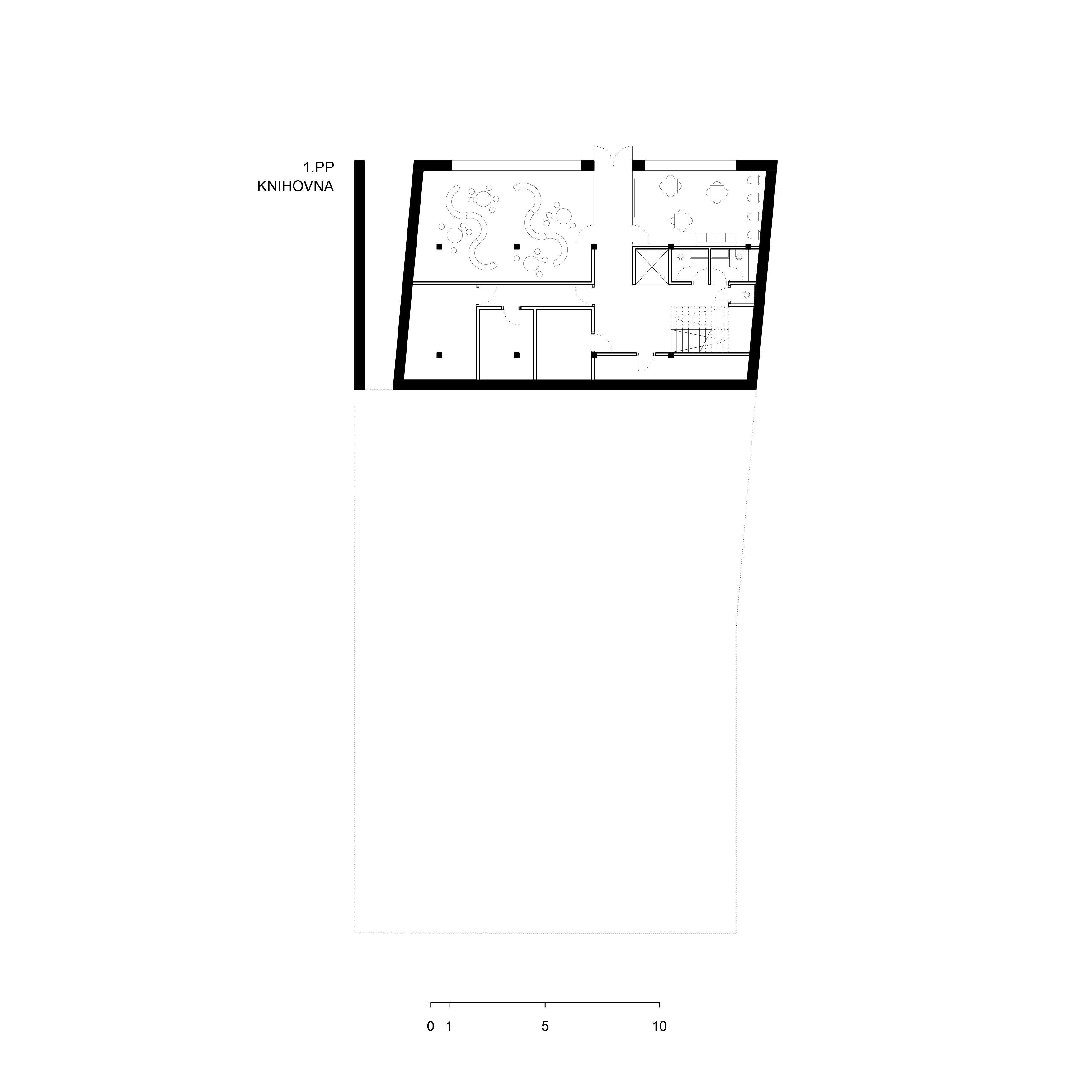
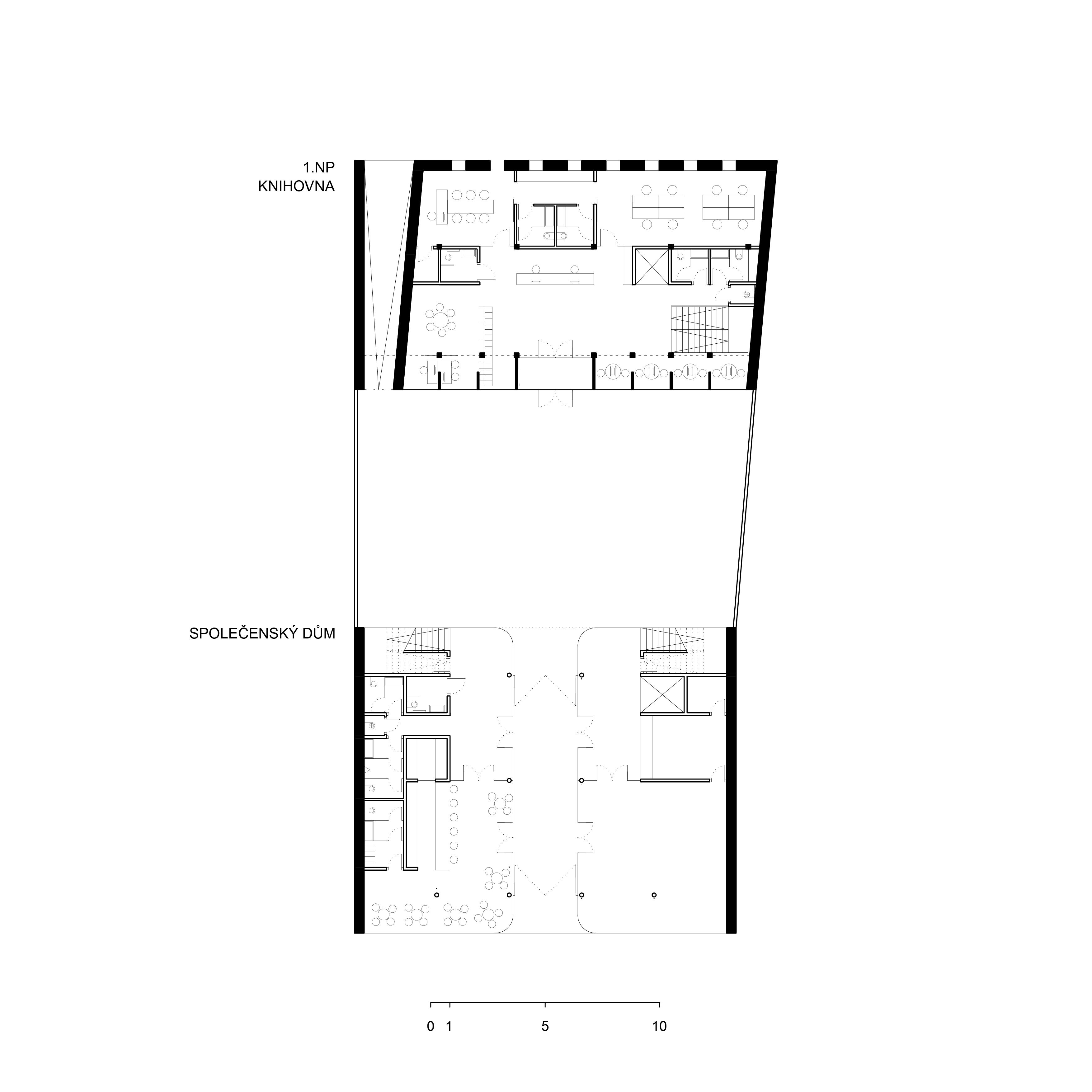
Navrhovaný objekt dělíme na dva samostatné domy, kterými prochází nová propojka k břehu potoka. Mezi nimi tak vzniká intimní náměstíčko, veřejný plácek, za nimi zahrada. Směrem do náměstí umisťujeme živější dům s městským sálem, salónkem, kavárnou a radniční galerií. Do hloubi parcely, na dotek rohu domu č.p. 1060, pak objekt knihovny. Ze dvora radnice odstraňujeme rampu a necháváme ho nadechnout.

pohled od potoka interiér vstup interiér situace axonometrie axonometrie půdorys 1.pp půdorys 1.np půdorys 2.np půdorys 3.np řez pohled pohled pohled pohled